BEAUVALLON, a Stunning Architectural Masterpiece
Luxury 5th Floor Rooftop Pool, Spa, European Gardens and Patios
Amazing City Skyline Views from your Private Wrap-Around Patio
Airy Living Room with Walls of Windows to Let in the View
Spacious Dining Area with Fabulous City and Mountain Views
Wonderful Kitchen with Granite, Stainless Steel and Views!
Flat Screen TV and Electric Crystal Ember Fireplace Included
Open Concept Floor Plan Flows Easily for Entertaining
Newer Wood Floors Throughout the Main Living Areas
Open Kitchen Offers Lots of Counter Space and The Views!!
Kitchen Easily Flows to the Entry Foyer and Utility Room
Large IKEA Armoire Closet in Master Suite is Included
Master Suite Features an En-Suite Bath and Walk-in Closet
Fully Updated Master En-Suite Bath with LED Lit Mirrors
Very Roomy Full Size Walk-in Shower
Professionally Organized Walk-in Master Closet
Three Walls of Organized Wardrobe
Three Walls of Organized Wardrobe
Lovely Second Bedroom with Double Closets
Second Bedroom Faces West and Offers Additional Mountain Views
Truly Gorgeous Mountain Views from the Second Bedroom Window
Your Guests will Enjoy this Spacious Tucked Away Three-Quarter Bath
Full Size Stack Washer and Dryer are Included
Laundry/Utility Room with Newer Furnace and New Heat Pump
Covered NW Corner Wrap-Around Deck with City and Mountain Views
Covered NW Corner Wrap-Around Deck with City and Mountain Views
Covered Private Deck off Master Suite with Views
Covered Private Deck off Master Suite with Views
View from Master Deck Overlooking the 5th Floor Pool and Gardens
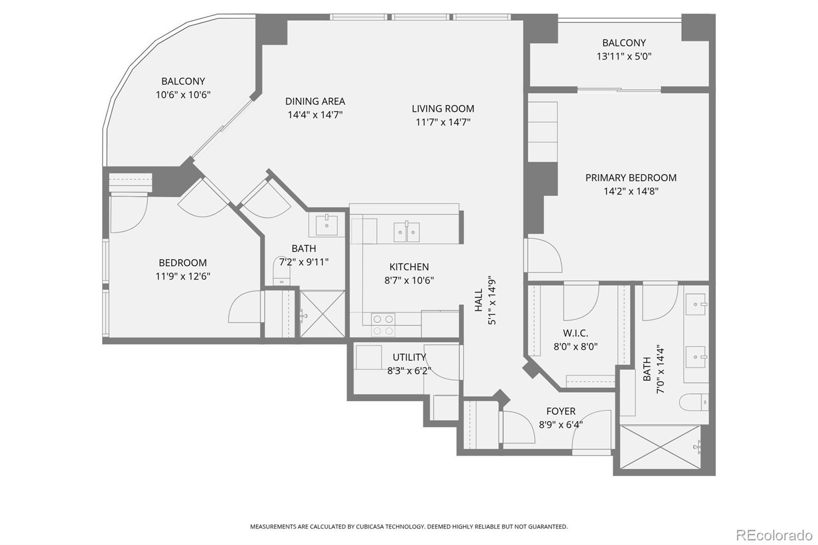
Complete Floor Plan of Residence 12C-S
Entry Foyer to the Private Residence
Private 12th Floor Locked Storage Closet Exclusive to 12C
Locked Storage Cage #103 in Locked Storage Room on Garage Level G2
Dedicated Heated Garage Space #60  is Close to the Elevator
Street Level Secure Building Entrance Lobby with Concierge
Street Level Secure Building Entrance Lobby with Concierge
Street Level Secure Building Entrance Lobby with Concierge
Elegant Rooftop Pool and Deck on the 5th Floor
Elegant Rooftop European Gardens on the 5th Floor
Inviting 5th Floor Community Patio with Grill and Cozy Fire Pits
Inviting 5th Floor Community Patio with Grill and Cozy Fire Pits
Truly Gorgeous City and Mountain Views from your Private Patios
Gorgeous Pool and Garden Views with the City Skyline
Absolutely Stunning Sunsets that Take Your Breath Away
Twinkling Night City Skyline through the Living Room Windows
Twinkling Night City Skyline from your Private Balcony
BEAUVALLON, a Stunning Architectural Masterpiece

MLS ID $

Overview

Price

$

  • Year Built

  • Total SQFT

  • Bedrooms

  • Bathrooms


Gallery Photos

View Video

Additional Resources

Mortgage Calculator

$
$
%
YR
$
$
$
Reset

Map and Local Info

Local Schools

Search for schools and colleges in the property's neighborhood through the National Center for Education Statistics.

Search local schools
Local Info

Find popular facts (population, income, etc.) and frequently requested data about your community in the American fact finder database.

Search local info

Contact  Me

Agent Bio

Agent Video